
Hill Residence
Nowoczesne domy w zabudowie bliźniaczej położone w spokojnej, zielonej części Krakowa - na Wzgorzach Krzesławickich
HillResidence
Hill Residence to kameralna inwestycja obejmująca dwa nowoczesne domy w zabudowie bliźniaczej, zlokalizowane w dzielnicy Wzgórza Krzesławickie w Krakowie.
Każdy dom oferuje ~169 m² powierzchni użytkowej oraz ~180 m² całkowitej powierzchni.


Położone w spokojnej okolicy Wzgórz Krzesławickich, te nowoczesne rezydencje oferują idealne połączenie współczesnego designu i naturalnego spokoju.
Każdy dom rozciąga się na trzech zaprojektowanych kondygnacjach , oferując salon z kuchnia na parterze, 4 przestronne sypialnie, 2 duże łazienki, dodatkowe WC oraz piekna przestrzeń do zagospodarowania na górze pod miejsce wypoczynku.
Architektura kładzie nacisk na duże okna i otwarte przestrzenie, tworząc jasne, przestronne wnętrza, które harmonijnie łączą się z prywatnym ogrodem.
Atuty lokalizacji
Doskonały Transport
Nowa pętla tramwajowo autobusowa zaledwie 100m
Zielone otoczenie
Spokojna lokalizacja na wzgórzu obok lasu otaczającego fort
Dostęp do Obwodnicy
Tylko 1 km do obwodnicy Krakowa – ~2 min
Wartość Inwestycyjna
Rozwijajaca sie dzielnica z duzym potencjalem (planowane ~1.5km nowe centrum handlowe)


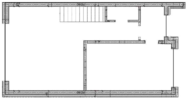
Parter (~57m2)
Wiatrołap z miejscem do przechowywania (ok 4m2)
Salon z kuchnia w układzie otwartym i wyściem na taras (4m okno przesuwne HST) - ok 33m2)
Toaleta dla gości (ok 2m2)
Garaż jednostanowiskowy z wejściem do domu (ok 18m2)


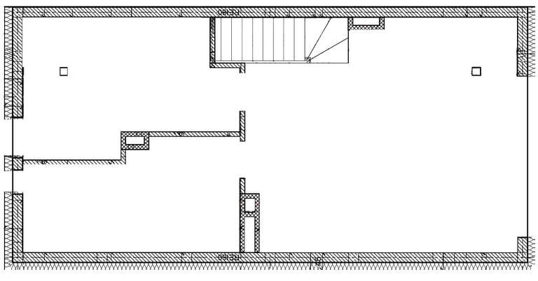
II piętro (~51m2)
Elastyczne pomieszczenia (gabinet ok 11m2, studio ok 29m2)
Pełna łazienka z piecem gazowym(ok 11m2)
Dużo naturalnego światła i piekne widoki


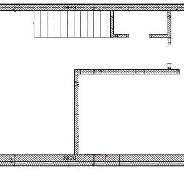
I piętro (~61m2)
3 wygodne sypialnie (ok 24m2, 15,5 m2, 9,5 m2)
Pełna łazienka z wanna i prysznicem (ok 7m2)
Miejsce na zabudowę szaf / przestrzeń do przechowywania
Centralny korytarz
Rzuty i wymiary maja charakter pogladowy mogą nieznacznie różnic sie wymiarami.
Wyjątkowy Design i Jakość
Hill Residence odzwierciedla nasze zaangażowanie w tworzenie domów o trwałym pięknie i komforcie


Miejsce gdzie można wypocząć
Wyjątkowa architektura zewnętrzna podnosi standard każdej przestrzeni, łącząc harmonijnie takie elementy jak bujna zieleń, przestronne tarasy oraz wydzielone miejsce na jacuzzi, tworząc idealne warunki do relaksu na świeżym powietrzu.
Każdy dom wyróżnia się unikalnym projektem i układem.


Nowoczesna Architektura
Czyste linie, duże przeszklenia i ponadczasowy design
Granitowe powierzchnie
Podjazdy, ścieżki i schody wykonane z granitu premium
Ogród w standardzie premium
Kompleksowa realizacja ogrodu: projekt, przygotowanie terenu i nowoczesne nasadzenia - jak na wizualizacjach
Prywatna strefa jaccuzi
Przygotowane miejsce na tarasie, osłonięte zielenia i ujęte w projekcie ogrodu.
Kaskakowy taras drewniany
Dwupoziomowa forma ze schodami, tworząca wyjatkową przestrzeń wypoczynku.
Standard realizacji zgodny z przedstawionyim wizualizacjami
Galeria z wizualizacjami












Cena 1,890,000 PLN ~11200 PLN za m2
Skontaktuj sie z nami!
Najszybszy kontakt : e-mail.
Po otrzymaniu wiadomości oddzwonimy
Contact
EMAIL : kontakt@hillresidence.pl
© 2026. All rights reserved.
TEL: +48 537 679 397